Haus zum Kauf in Kleve

- V E R K A U F T - Schöne Doppelhaushälfte mit Einbauküche, Garage, Vollkeller in Reichswaldnähe in Kleve

378.000 €

Kaufpreis
  • 123 m²

    Wohnfläche (ca.)
  • 4

    Zimmer
  • 293 m²

    Grundstück (ca.)
  • 1999

    Baujahr

Preise & Kosten

Standort

47533 Kleve

Preise
  • Kaufpreis 378.000 €
Käuferprovision inkl. USt.
2,975%

Die Immobilie

Haus zum Kauf
  • Objekt-Nr 5968#Cc8Gae
  • verfügbar ab kurzfristig
Stellflächen
  • Garagenanzahl 1
Weitere Flächen
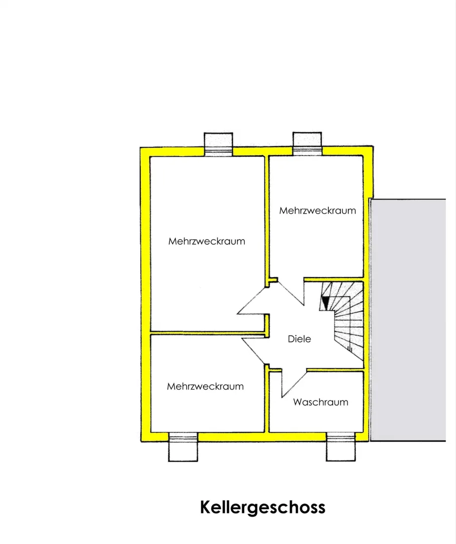
  • Kellerfläche (ca.) 64 m²
Räume und Flure
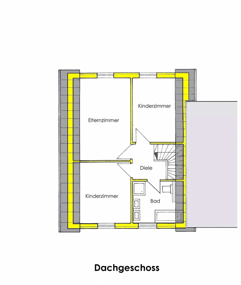
  • Anzahl Schlafzimmer 3
  • Anzahl Badezimmer 1
  • Anzahl separate WCs 1
  • Anzahl Terrassen 1

Ausstattung

  • Provisionspflichtig
  • Gäste-WC
  • Dachform: Satteldach
  • Unterkellert: Ja
  • Bad mit: Dusche, Wanne, Fenster
  • Küche: Einbauküche
  • Heizungsart: Zentralheizung

Ihr Ansprechpartner

Herrn Markus Opgenorth

Telefon: +49 2821 49960

Ihre Anfrage

Energieverbrauchsausweis

0255075100125150175200225250
68,80 kWh/(m²*a)
  • Endenergieverbrauch 68,80 kWh/(m²*a)
  • Befeuerungsart Gas
  • Wesentlicher Energieträger Gas
  • Energieeffizienzklasse B
  • Gültig bis 28.08.2035
  • Energieausweis Ausstellungsdatum 2025-08-29